1 van 39
Nieuwbouw San Miguel de Salinas
Moderne nieuwbouwappartementen in het centrum van San Miguel de Salinas
Eigentijds wonen in een gezonde mediterrane omgeving
Deze nieuwe woonwijk ligt in het charmante stadje San Miguel de Salinas, op slechts 10 km van de Middellandse Zee, en biedt de perfecte balans tussen modern comfort en een natuurlijke omgeving. Het gebied staat bekend om zijn nabijgelegen zoutmeren en uitzonderlijke microklimaat, dat als een van de gezondste van Europa wordt beschouwd. In dit rustige maar levendige stadje kunnen bewoners genieten van de authentieke mediterrane levensstijl, terwijl winkels, restaurants, supermarkten en alle essentiële voorzieningen op loopafstand liggen.
San Miguel de Salinas ligt iets landinwaarts aan de Costa Blanca Zuid en biedt een weids uitzicht, frisse lucht en gemakkelijke toegang tot stranden, golfbanen en winkelgebieden.
Stijlvolle appartementen ontworpen voor comfort en efficiëntie
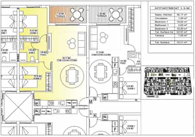
Het project bestaat uit twee moderne gebouwen, gescheiden door een aangelegde gemeenschappelijke tuin. Er zijn in totaal 56 moderne appartementen beschikbaar met 1, 2 of 3 slaapkamers, elk met een eigen terras. Elke woning is ontworpen met het oog op comfort, esthetiek en energie-efficiëntie, waarbij gebruik is gemaakt van hoogwaardige materialen en moderne isolatiesystemen.
Elk appartement is voorzien van:
Gepantserde toegangsdeur
Badkamers met wastafels
Voorbereiding voor airconditioning
Energiecertificaat klasse A
De indeling en oriëntatie van de woningen zorgen voor natuurlijk licht gedurende de hele dag, waardoor er een licht en uitnodigend interieur ontstaat dat ideaal is voor zowel permanent wonen als vakantiegebruik.
Uitzonderlijke gemeenschappelijke ruimtes voor ontspanning en sociaal leven
De gemeenschappelijke ruimte op de begane grond is ontworpen als het sociale hart van het project, omgeven door aangelegde tuinen, zitjes, fietsenstallingen en een kinderspeelplaats. Het is een ideale ontmoetingsplaats voor bewoners van alle leeftijden.
Op het dak wacht een indrukwekkende recreatieruimte van 350 m2. Deze ruimte omvat een zwembad van 70 m2 met een apart kinderbad, pergola's, ligstoelen en schaduwrijke plekken, waar bewoners kunnen ontspannen terwijl ze genieten van een panoramisch uitzicht. Het dak is gemakkelijk bereikbaar met een van de drie liften en is voorzien van sanitaire voorzieningen voor extra comfort.
Uitstekende locatie dicht bij belangrijke bezienswaardigheden
Mediterrane stranden 10 km
Winkelcentrum Zenia Boulevard 9 km
Villamartin Golf 6 km
Las Colinas Golf 8 km
Jachthaven van Torrevieja 12 km
Luchthaven van Alicante 60 km
Luchthaven Murcia Corvera 55 km
Een slimme investering aan de zuidkust van de Costa Blanca
Dit wooncomplex combineert moderne architectuur, hoogwaardige afwerking en een uitstekende centrale ligging, waardoor het een uitstekende keuze is om te wonen, van uw vakantie te genieten of te verhuren.
Neem vandaag nog contact met ons op voor meer informatie of om een bezichtiging te regelen van deze moderne appartementen in San Miguel de Salinas.
Feiten & Kenmerken
vanaf € 165.000
70 m²
2 Slaapkamers
1 Badkamer
